- 兵庫県の土地情報は家土地サーチ
- 土地検索
- 姫路市
- 兵庫県姫路市広畑区北野町2丁目
土地詳細Land Detail
中古一戸建て空家
兵庫県姫路市広畑区北野町2丁目
価格:2,300万円
※古家ありの場合(築30年以上の中古戸建て等)解体には別途解体費用が必要です。
物件によっては解体できない場合があります。
この物件のお支払い例
この土地の支払い例
※上記支払例の借入条件:金利0.700%、
借入総額2,300万円、借入期間35年
この土地の支払い例
※上記支払例の借入条件:金利0.700%、
借入総額万円、借入期間35年
※省エネ性能レベルの詳細は商品毎に異なります。詳しくはお問い合わせください。
新築セットプランお支払い例
総額:0万円(税込)
土地+新築プランセット
の支払い例
※上記支払例の借入条件:金利0.700%、
借入総額万円、借入期間35年
※省エネ性能レベルの詳細は商品毎に異なります。詳しくはお問い合わせください。
※新築セットプランの建物価格は参考価格です。土地代金と建物価格以外に、契約事務手数料や外構工事を含む付帯工事費用が必要です。また、土地の条件によっては、建築できない場合や土地の上物解体費用や造成工事に費用がかかる場合があります。予めご了承ください。
この不動産の支払い例
※上記支払例の借入条件:金利0.700%、
借入総額万円、借入期間35年
画像
所在地・交通
| 所在地 |
兵庫県姫路市広畑区北野町2丁目
|
| 最寄駅 |
山陽電鉄網干線 夢前川 徒歩 約15分 |
| 最寄バス停 |
|
| 小学校校区 |
広畑小 |
| 中学校校区 |
広畑中 |
※地図上の「ピンマーク」の位置は「町名」もしくは「丁目」がある場合は「丁目」にマッピングされています。
実際の場所ではございません。
物件概要
| 種目 |
中古一戸建て
※古家ありの場合(築30年以上の中古戸建て等)解体には別途解体費用が必要です。 物件によっては解体できない場合があります。
|
| 土地面積 |
258.19㎡ |
| 私道面積 |
|
| 建ぺい率/容積率 |
60% / 200% |
| 都市計画 |
市街化区域 |
| 接道状況 |
北東 幅7m 公道 / 南東 幅7m 公道 |
| 間口 |
|
| 奥行 |
|
| 地目 |
宅地 |
| 土地権利 |
所有権 |
| 地勢 |
平坦 |
| 用途地域 |
第二種中高層住居専用地域 |
| 現況 |
空家 |
| 条件等 |
|
| 取引態様 |
仲介 |
| 種目 |
中古一戸建て |
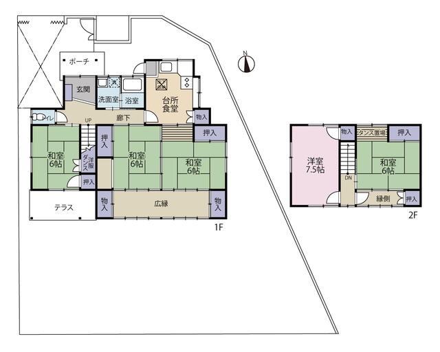
| 間取り |
|
| 間取り内訳 |
|
| 土地面積 |
258.19㎡ |
| 私道面積 |
|
| 建物面積 |
|
| 建物構造規模 |
|
| 築年月(竣工月) |
|
| 駐車場有無 |
|
| 建ぺい率/容積率 |
60% / 200% |
| 都市計画 |
市街化区域 |
| 接道状況 |
北東 幅7m 公道 / 南東 幅7m 公道 |
| 地目 |
宅地 |
| 土地権利 |
所有権 |
| 地勢 |
平坦 |
| 用途地域 |
第二種中高層住居専用地域 |
| 現況 |
空家 |
| 取引態様 |
仲介 |
| 種目 |
中古一戸建て |
| 間取り |
|
| 間取り内訳 |
|
| 土地面積 |
258.19㎡ |
| 私道面積 |
|
| 建物面積 |
|
| 建物構造規模 |
|
| 築年月(竣工月) |
|
| 駐車場有無 |
|
| 建ぺい率/容積率 |
60% / 200% |
| 都市計画 |
市街化区域 |
| 接道状況 |
北東 幅7m 公道 / 南東 幅7m 公道 |
| 地目 |
宅地 |
| 土地権利 |
所有権 |
| 地勢 |
平坦 |
| 用途地域 |
第二種中高層住居専用地域 |
| 現況 |
空家 |
| 取引態様 |
仲介 |
| 種目 |
中古一戸建て |
| 間取り |
|
| 間取り内訳 |
|
| 専有面積 |
|
| 建物構造 |
|
| バルコニー面積 |
|
| 向き |
|
| 階数 |
|
| 所在階 |
|
| 築年月(竣工月) |
|
| 駐車場有無 |
|
| 駐車場料金 |
|
| 駐車場備考 |
|
| 総戸数 |
戸 |
| 管理費 |
|
| 積立金 |
|
| 土地権利 |
所有権 |
| 管理形態/方式 |
|
| 用途地域 |
第二種中高層住居専用地域 |
| 現況 |
空家 |
| 取引態様 |
仲介 |
| 種目 |
中古一戸建て |
| 土地面積 |
258.19㎡ |
| 私道面積 |
|
| 建物面積 |
|
| 建物構造規模 |
|
| 築年月(竣工月) |
|
| 駐車場有無 |
|
| 駐車場料金 |
|
| 駐車場備考 |
|
| 建ぺい率/容積率 |
60% / 200% |
| 都市計画 |
市街化区域 |
| 接道状況 |
北東 幅7m 公道 / 南東 幅7m 公道 |
| 地目 |
宅地 |
| 土地権利 |
所有権 |
| 地勢 |
平坦 |
| 用途地域 |
第二種中高層住居専用地域 |
| 現況 |
空家 |
| 取引態様 |
仲介 |
| 種目 |
中古一戸建て |
| 間取り |
|
| 間取り内訳 |
|
| 専有面積 |
|
| 建物構造 |
|
| バルコニー面積 |
|
| 向き |
|
| 階数 |
|
| 所在階 |
|
| 築年月(竣工月) |
|
| 駐車場有無 |
|
| 駐車場料金 |
|
| 駐車場備考 |
|
| 総戸数 |
|
| 管理費 |
|
| 積立金 |
|
| 土地権利 |
所有権 |
| 管理形態/方式 |
|
| 用途地域 |
第二種中高層住居専用地域 |
| 現況 |
空家 |
| 取引態様 |
仲介 |
取引条件等
その他
| 設備 |
|
| 特徴 |
|
| 諸条件・相談 |
|
| 備考 |
|
| 情報登録日 |
2025年11月4日 |
| 情報更新予定日 |
2025年12月2日 |
| 物件番号 |
56925 |
この土地に似た土地を
ピックアップしました!